Localizada no litoral norte paulista, esta residência de veraneio está encaixada em uma pequena clareira, aberta em meio a uma encosta densamente arborizada. O projeto parte de uma pré-existência: uma residência, construída nos anos 80, cujas condições estruturais encontravam-se em grande parte, comprometidas. O projeto parte do reconhecimento das estruturas que poderiam ser incorporadas e propõe assim, por meio da inserção de um novo corpo central, um novo agenciamento dos espaços.

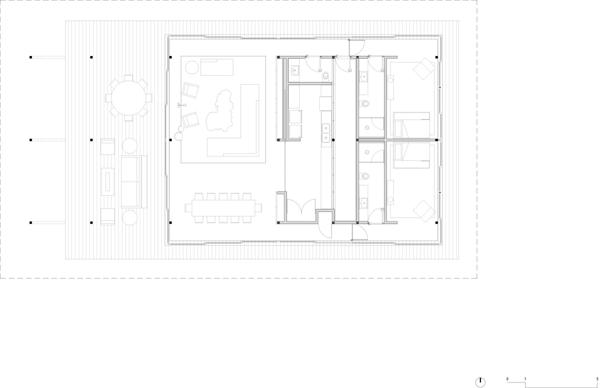
Este novo volume, construído a partir de uma estrutura modular de madeira, se encaixa na clareira delimitada pelos volumes da suíte principal e o corpo da piscina – ambos pré-existentes – de tal forma que o conjunto passa a ser articulado por este novo volume que, por sua vez, a loja os espaços sociais da casa: sala, varanda, cozinha, além de duas suítes. Esta nova estrutura se configura como a sobreposição de dois planos: um plano de piso, elevado do solo, e um plano de cobertura, com grandes beirais que se lançam para as quatro fachadas.

A elevação da estrutura com relação ao solo, bem como a projeção de largos beirais, faz parte das estratégias bioclimática da edificação, que valorizamos fenômenos naturais – sombra e ventilação natural – como principais ferramentas de aclimatação dos ambientes. Estas estratégias, associadas ao sistema construtivo, que incorpora em grande medida a pré-fabricação e a industrialização de componentes, constituem uma abordagem cuidadosa do lugar, onde o impacto é reduzido ao mínimo.

Uma grande varanda é posicionada estrategicamente para que funcione, a um só tempo, como principal espaço de vivência da casa, espaço de circulação que articula o conjunto dos volumes da casa, zona de amortecimento térmico – por intermediar a face poente e o espaço fechado do estar – além de ser o ponto privilegiado da vista sobre as montanhas e o mar.

A estrutura de madeira, com peças laminadas pré-fabricadas, foi simplesmente montada e aparafusada no local. Fechamentos verticais e forros foram realizados a partir de chapas de madeira compostas pré-fabricadas fixadas diretamente sobre a estrutura. A cobertura foi realizada com a aplicação de isolante térmico (EPS) e manta sintética impermeabilizante. Esquadrias de alumínio e vidros laminados foram utilizados para o fechamento externo.