Esta residência de veraneio é situada a poucos metros do mar, no litoral norte paulista um lugar com exuberante vegetação e clima quente úmido.

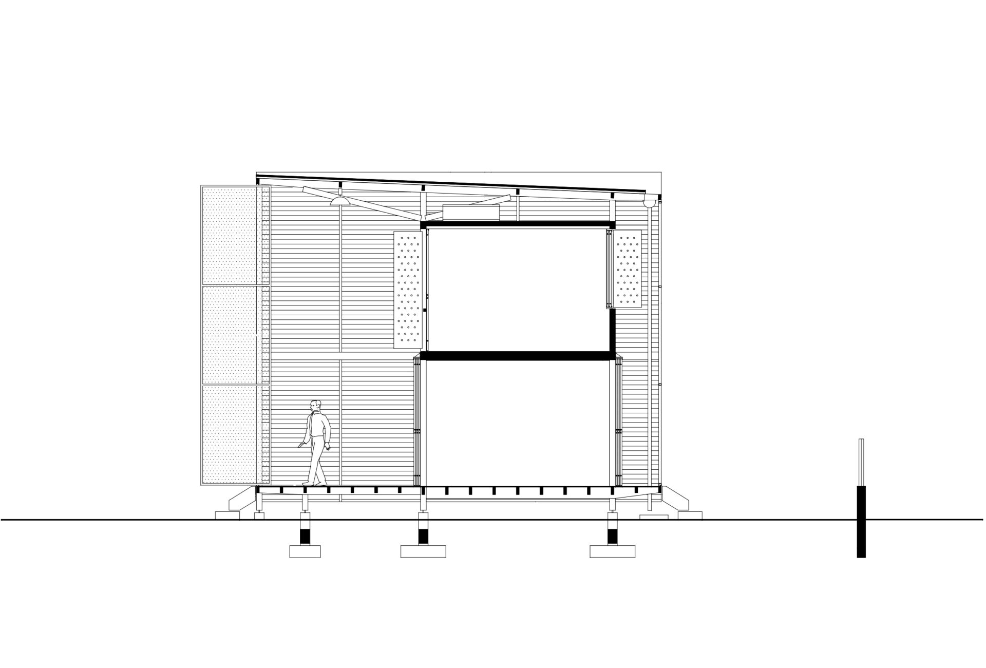
Pensamos como primeiro ato criar um grande abrigo, uma “concha”, sob o qual poderíamos alojar o programa, protegido do sol forte e das freqüentes chuvas e ainda assim permitir a permanente ventilação cruzada.

Esta cobertura com seis metros de altura, e dezoito por oito metros de base é construída com estrutura de madeira com juntas de aço galvanizado. Seus fechamentos superior e lateral são feitos por telhas de aço com enchimento de EPS.

Nas duas fachadas maiores da casa, francamente abertas para a paisagem, foram instalados painéis de telas de fibra de vidro e PVC, montadas em requadros de aço, pivotantes ou deslizantes, com o intuito de criar uma membrana externa, capaz de manter os insetos fora, sem criar obstáculo para a visual ou para a brisa do mar.

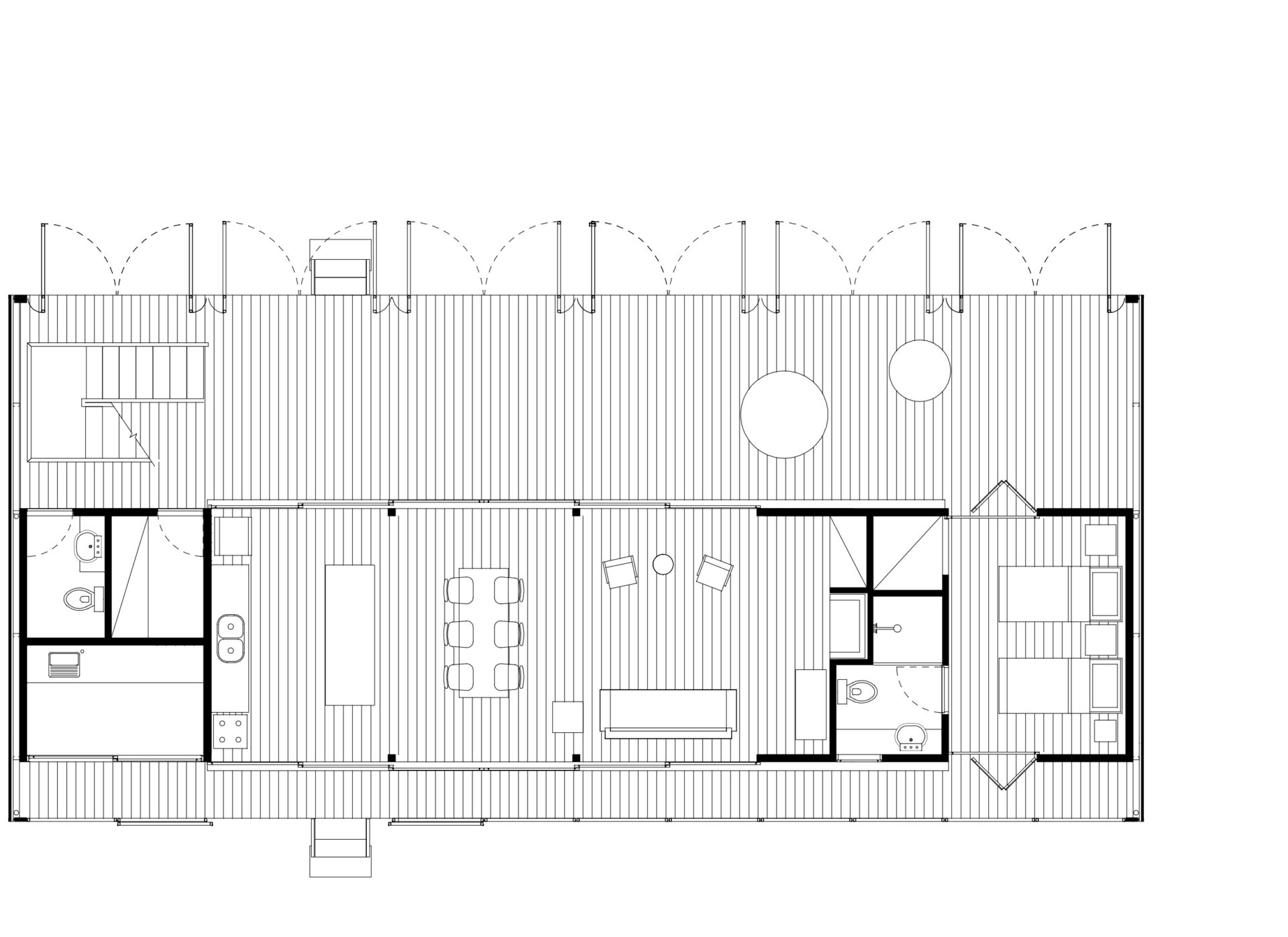
Toda a construção está elevada 75 cm com relação ao solo, apoiada sobre pilotis de concreto moldados no local. Todos os demais componentes utilizados na edificação foram levados prontos e apenas montados no lugar.

O sistema construtivo adotado além de permitir uma montagem rápida e precisa assegurou um canteiro seco, com pouca geração de resíduos e baixo impacto no meio ambiente.