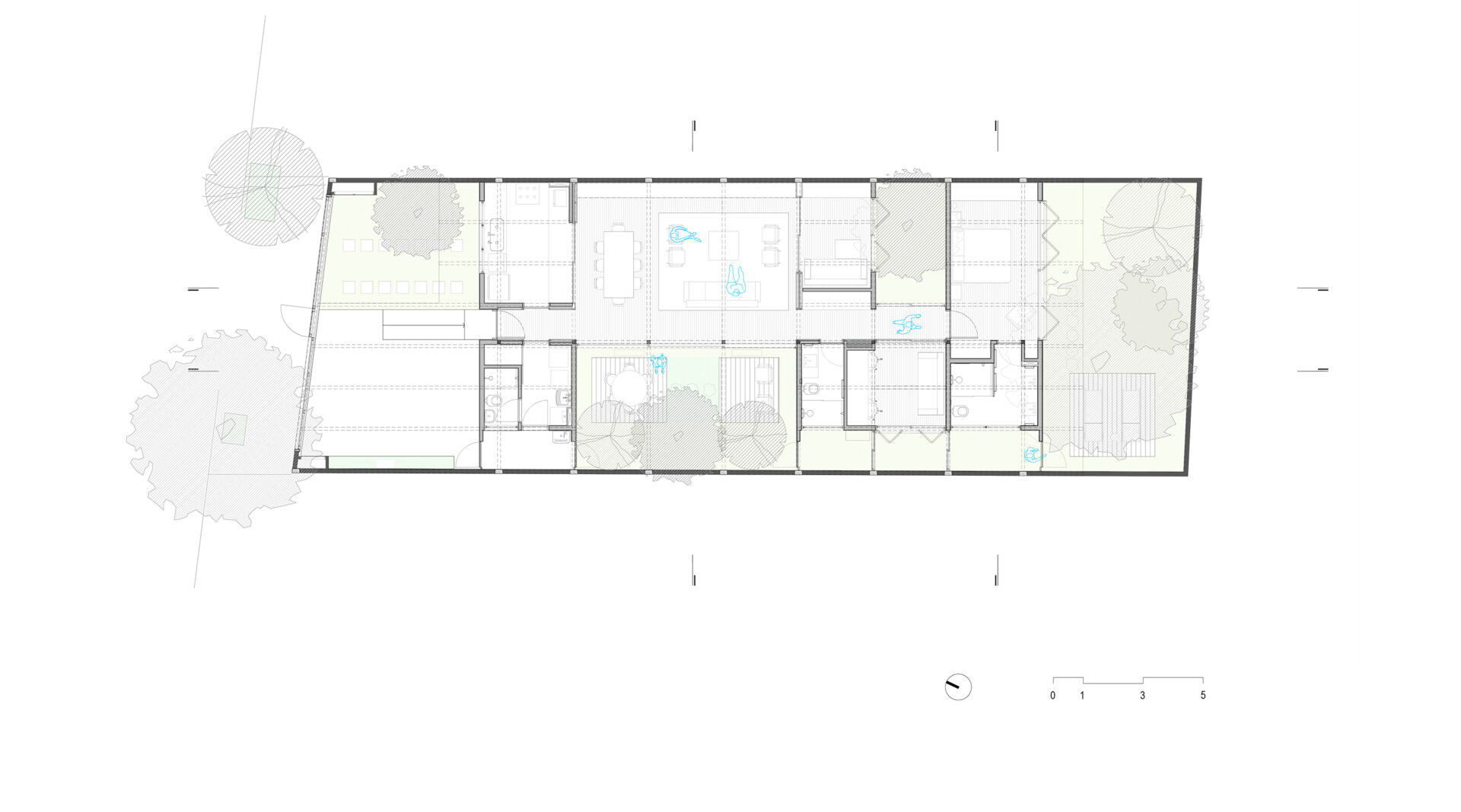
Localizada em um bairro residencial tranquilo e bem arborizado, esta residência térrea se insere na vizinhança de forma discreta, valorizando a criação de um ambiente introspectivo, voltado para o interior do lote. Com a construção de uma estrutura de cobertura contínua, em forma de pérgula que paira sobre o lote, a implantação da casa busca proporcionar um espaço acolhedor e integrador.

Sob esta cobertura se estabelece um espaço contínuo, caracterizado pela presença constante da luz do céu — filtrada por meio das pérgulas — que toma todo o lote, de um lado a outro, da frente ao fundo. Como consequência desta estratégia de implantação, temos aqui uma casa cuja volumetria é praticamente anulada e que tem a cobertura como sua fachada principal.

O principal atributo desta implantação, no entanto, consiste em se estabelecer uma ambiência amena e fluida, onde espaços internos e externos estão em permanente relação de continuidade, sem obstáculos visuais, sem escadas ou desníveis. Em essência, cria-se um espaço qualificado para uma casa radicalmente térrea.

A estrutura de cobertura, constituída por perfis de aço, é complementada com diferentes elementos, a depender do trecho que está cobrindo: sobre os espaços fechados, sobrepõem-se chapas de OSB com isolante térmico e manta impermeabilizante e, sobre os pátios e jardins, sobrepõem-se réguas paralelas de madeira, formando um filtro solar horizontal. Sob a cobertura, fechamentos leves, painéis móveis e caixilhos constituem os planos verticais que delimitam os distintos ambientes da casa.