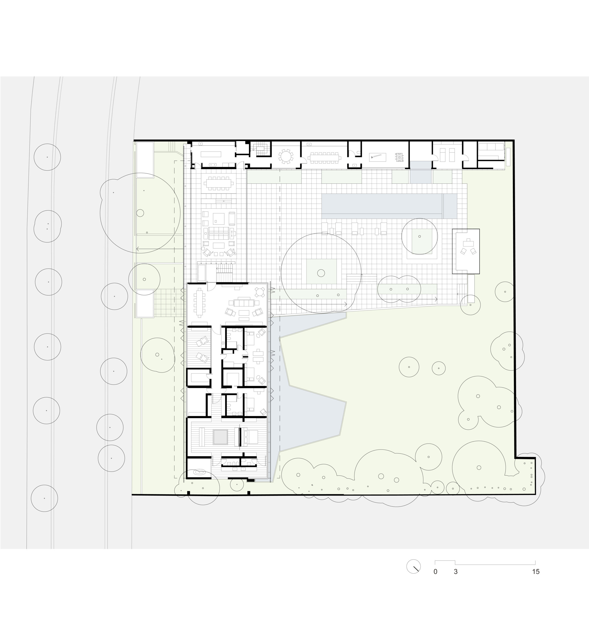
Concebida como um pavilhão linear, essa residência está implantada em um generoso lote urbano e sua inserção visa valorizar ao máximo uma relação franca entre as áreas construídas e o jardim.

O primeiro passo para a implantação da casa foi estabelecer uma ampla plataforma pavimentada, encaixada no terreno. Como uma praça, ela proporciona o espaço do estar ao ar livre, ao mesmo tempo em que recebe as atividades coletivas da casa: o estar, a varanda, a biblioteca, os espaços de lazer e a piscina.

Encaixado lateralmente à plataforma, situado meio nível acima do piso desta, está o volume que abriga a ala íntima da casa, com a sala da família, os quartos e um terraço coberto. Esse volume, construído com perfis metálicos e fechamentos leves, se comunica com a plataforma por meio de uma escada metálica leve.

Uma generosa cobertura paira sobre a plataforma e também sobre o volume dos espaços mais privativos da casa e, assim, determina o espaço coberto da casa. A posição elevada desta cobertura, destacada dos volumes inferiores, contribui para a caracterização de uma construção bem aerada, composta por elementos destacados uns dos outros, revelando a leveza do conjunto.

Esta cobertura, concebida como uma pérgula que cruza todo o lote, foi construída com perfis de aço e fechada com vidro sobre as áreas sociais ou painéis de madeira impermeabilizados sobre a ala íntima da casa. O sistema construtivo adotado, composto por materiais leves, todos aparentes, expressa leveza e valoriza a permeabilidade e a luz na construção.

Na área do estar e jantar, a cobertura envidraçada é sobreposta por um plano de quebra-sóis de alumínio e, na sua face inferior, por um forro composto por uma membrana tensionada translúcida. Como resultado deste conjunto de múltiplas camadas, a sala está banhada por uma luz do dia tornada branda e uniforme, conferindo ao ambiente uma atmosfera amena, além de minimizar o contraste luminoso entre o espaço interno e externo, mais uma vez valorizando a relação fluida entre ambos.