Localizada no litoral norte paulista, esta residência de veraneio fica situada a poucos metros do mar, ainda assim permanece oculta para aqueles que desfrutam as ondas ou as areias brancas da praia. Totalmente envolta pela mata nativa da orla, a construção mimetiza seu entorno exuberante.

Constituída como um volume neutro, com suas faces translúcidas voltadas para os lotes vizinhos, a implantação prioriza a frontalidade com a praia a partir de grandes aberturas em vidro, de tal forma a incorporar, em seus reflexos, tanto quanto em seus espaços internos, os matizes deste bioma. A translucidez é garantida pelo fechamento externo, constituído por painéis alveolares de policarbonato que deverão, a um só tempo, proporcionar a filtragem da luz, do som e do calor.

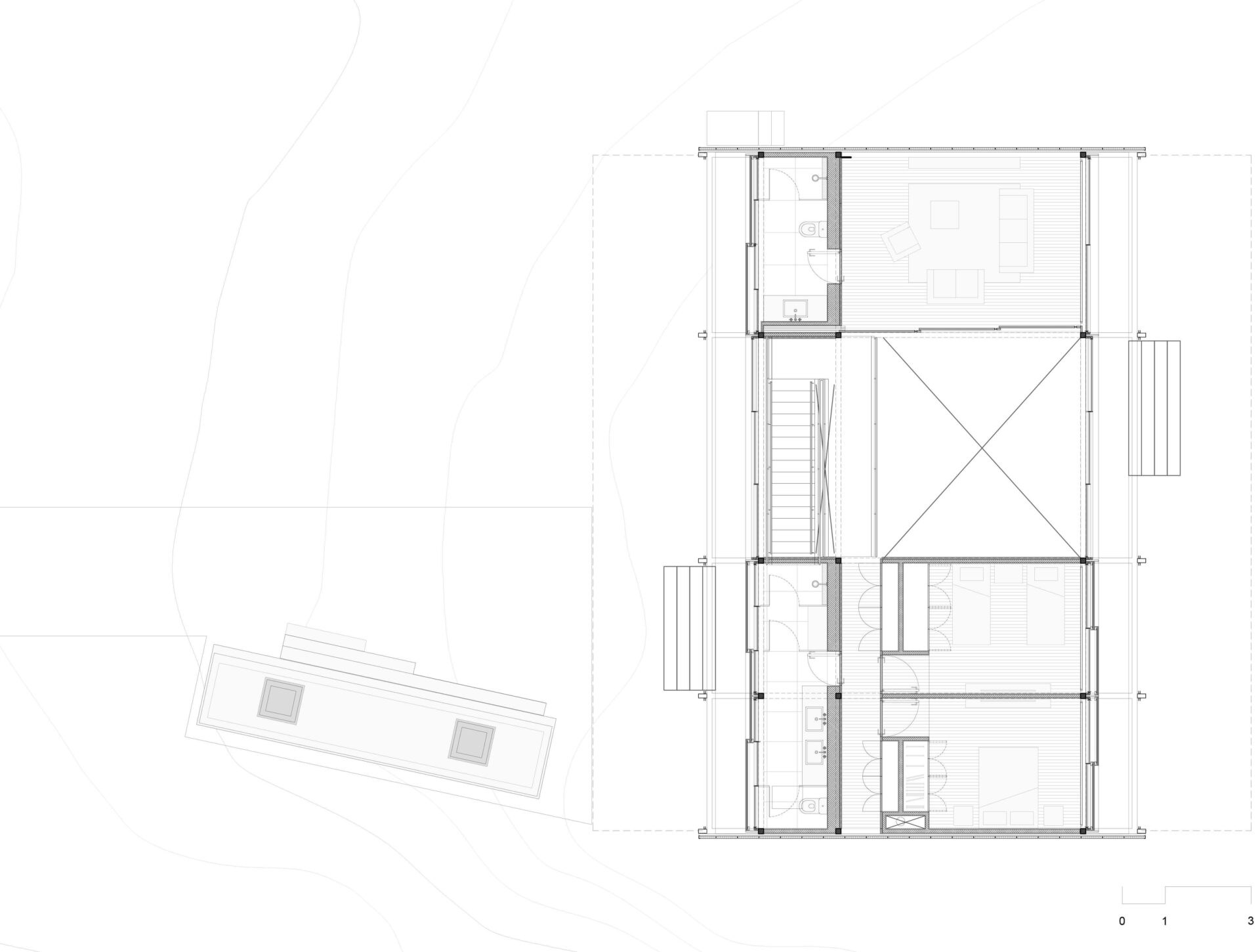
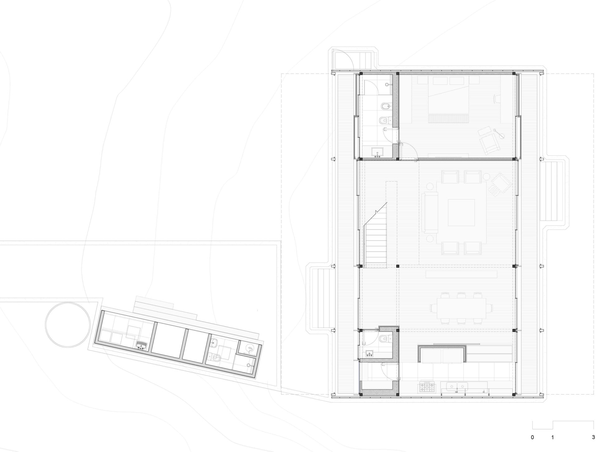
Grandes beirais dispostos ao longo das duas fachadas principais da casa permitem que a sombra e a ventilação natural sejam incorporadas como elementos-chave na estratégia da adequação climática e na redução do consumo de energia. Nestas faces, conjuntos independentes de portas metálicas de enrolar conformam uma volumetria unificada para a casa.

O sistema construtivo como um todo — composto basicamente por elementos pré-fabricados a serem montados no local — contribui para minimizar o impacto da construção em meio a este bioma tão delicado. Toda a construção está elevada 75 centímetros com relação ao solo, garantindo uma ventilação natural de base, que além de resfriar a casa, reduz significativamente o excesso de umidade.

A estrutura em madeira laminada colada foi montada e aparafusada no local. Fechamentos verticais e forros foram realizados a partir de chapas de madeira compostas pré-fabricadas fixadas diretamente sobre a estrutura. A cobertura foi executada com a aplicação de isolante térmico (EPS) e manta sintética impermeabilizante. Além dos painéis de policarbonato alveolar, esquadrias de alumínio e vidros laminados foram utilizados para o fechamento externo.