Esta casa, localizada num bairro-jardim da cidade de São Paulo, tira proveito de sua condição privilegiada e faz da integração com a natureza seu traço distintivo. Todos os seus espaços mantêm uma relação clara com o parque de mais de 1.500,00m2 no qual estão inseridos.

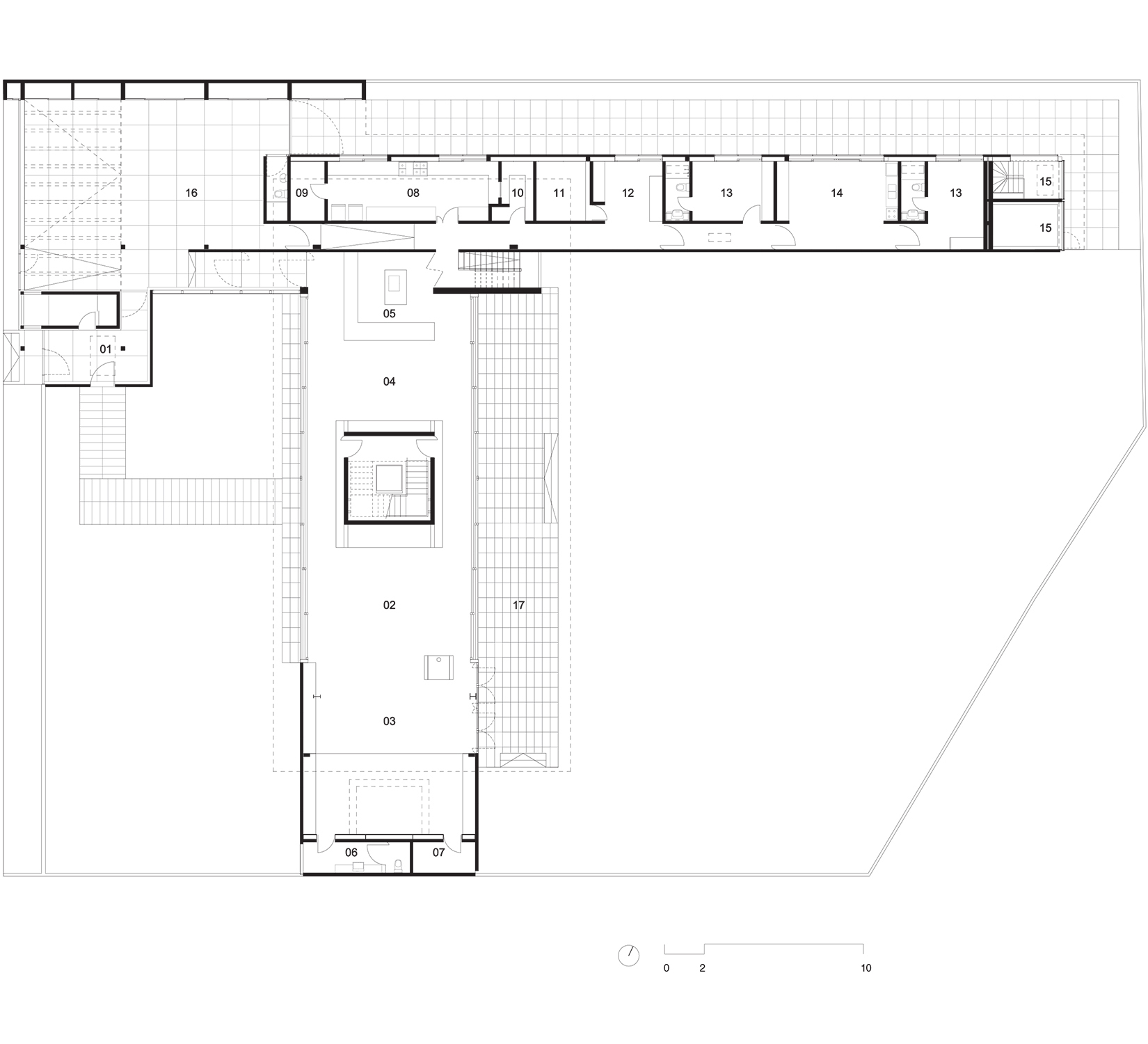
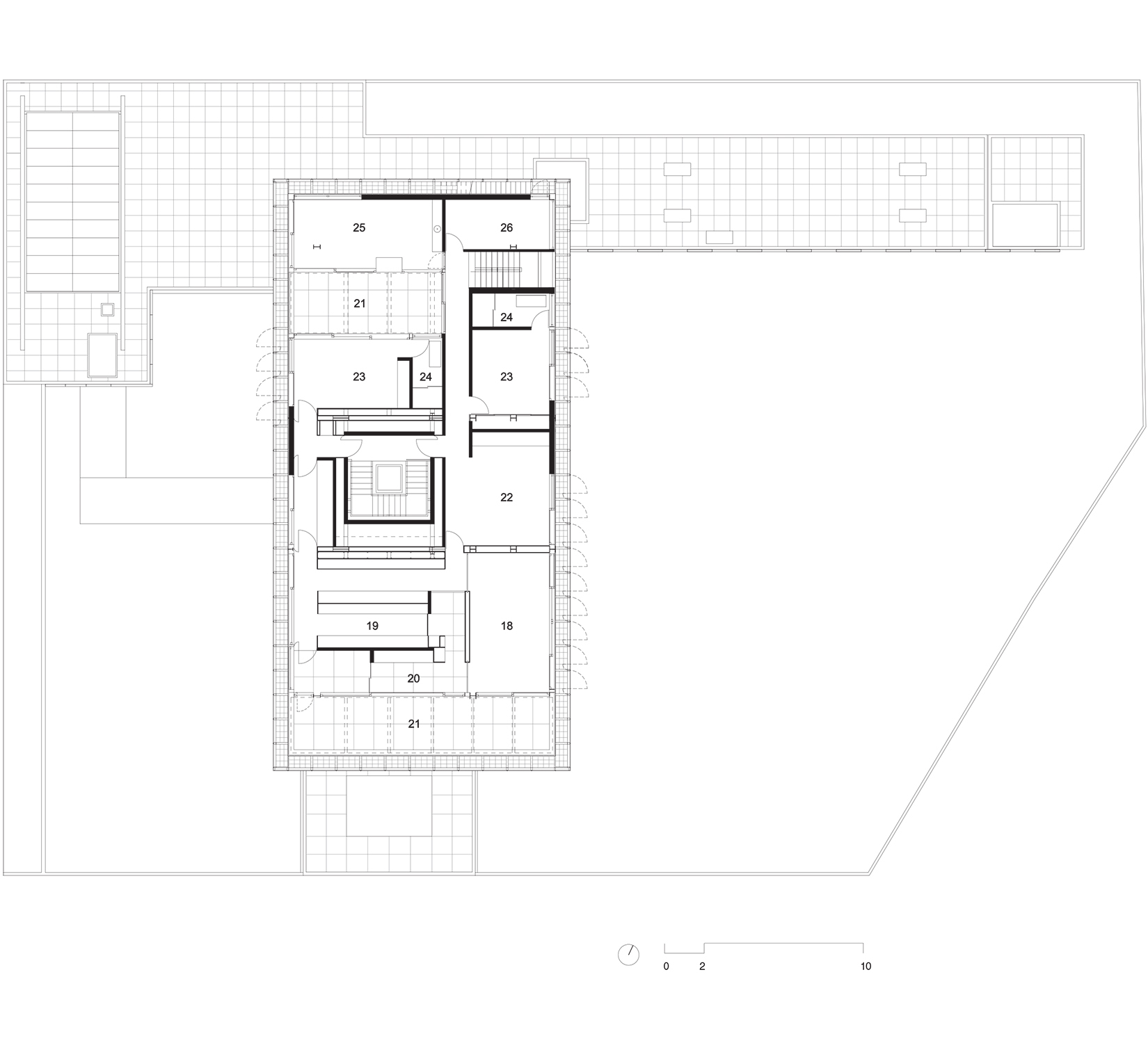
No térreo, os espaços de convívio estão localizados sob a sombra do volume superior da casa, conectados aos jardins através de uma grande varanda e das portas decorrer de vidro — que podem ser recolhidas totalmente, criando uma abertura de 14m de largura. O volume superior, concebido como uma caixa translúcida, abriga os quartos e outros ambientes que requerem maior privacidade.

A estrutura do volume de vidro foi concebida de tal maneira que ele parece flutuar sobre o jardim, sustentado pelo pilar central de concreto armado, que abriga também a escada de acesso ao pavimento superior. A articulação entre os planos horizontais e este pilar de sustentação é reforçada pela criação de vazios ao redor de toda a caixa de concreto, que são utilizados também para trazer luz natural da cobertura para o interior da casa.

Todo o volume superior é fechado por uma pele de vidro serigrafado, que funciona como filtro de luz e quebra-sol. A estampa que compõe a serigrafia funciona como uma reverberação da imagem do parque na superfície da casa, reforçando a interdependência entre o objeto arquitetônico e a natureza.