O Pop+ desfruta de uma condição privilegiada dentro da Vila Madalena. Sua localização, em uma das cotas mais elevadas do bairro, permite que os seus conjuntos desfrutem de vistas privilegiadas do entorno. Adicionalmente, o terreno conta com um parque arbóreo muito bonitonos fundos do lote, que será reforçado pelo projeto de paisagismo.

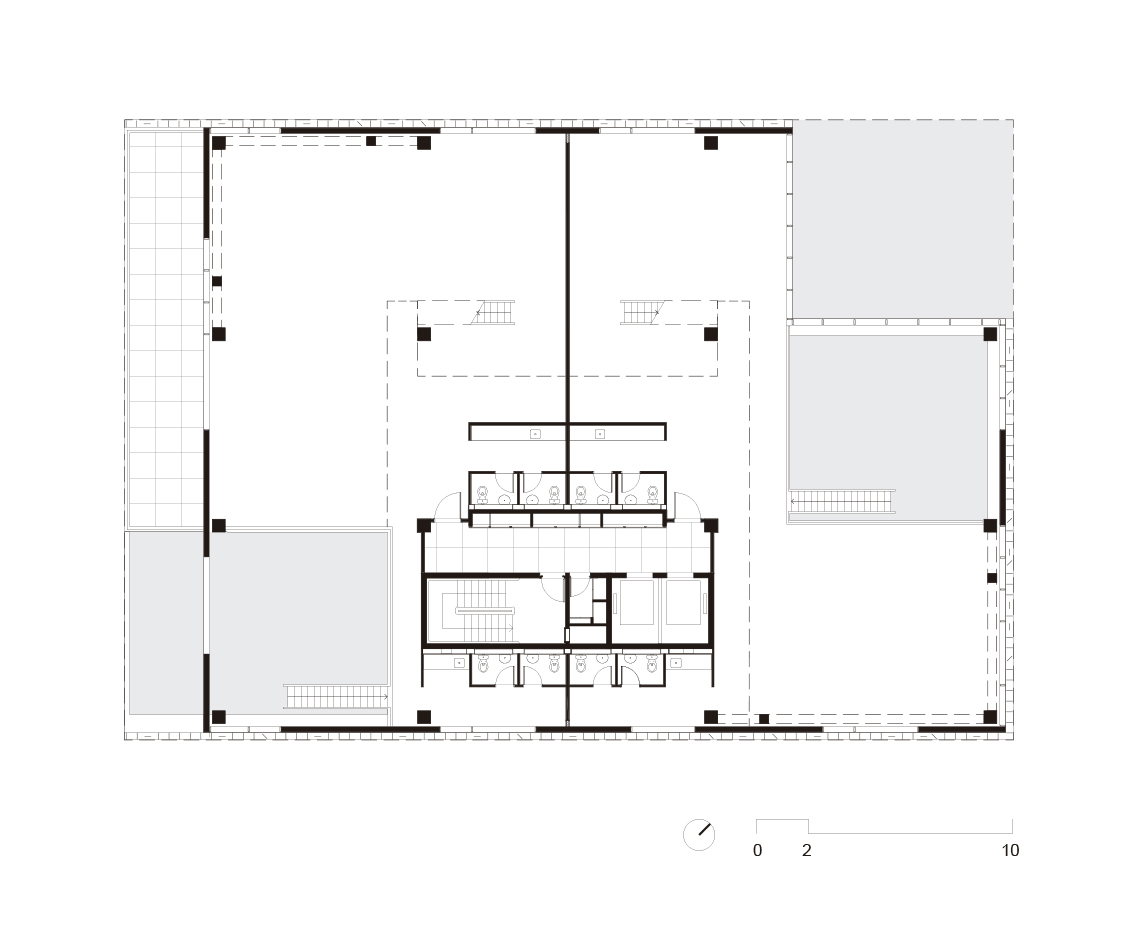
A implantação parte da criação de uma praça de entrada sob o edifício, que está totalmente conectada tanto com a rua quanto com o parque nos fundos do terreno. Com pés-direitos variáveis, a praça serve não só de área de convívio para os usuários do prédio como faz a conexão visual do parque com o espaço público da rua.

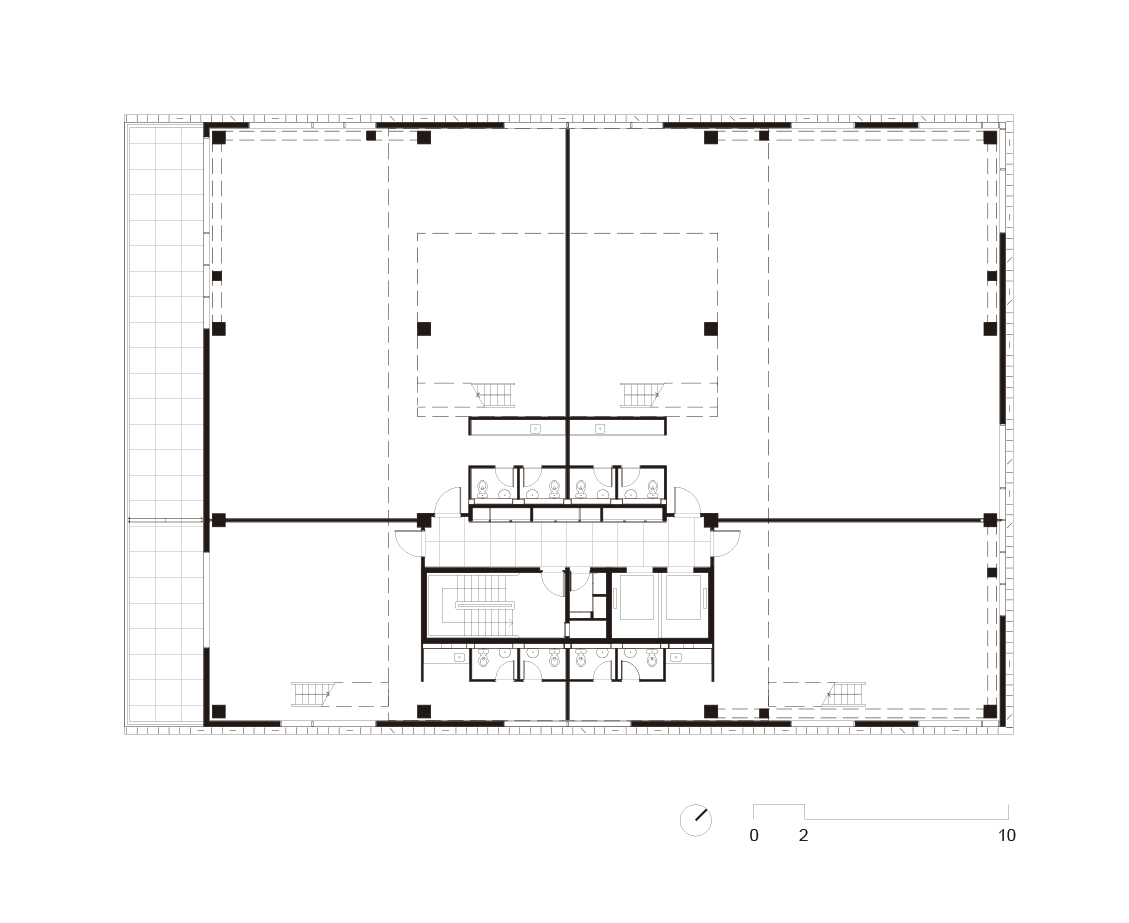
Para reforçar a importância desta praça e para tornar seu espaço mais interessante, a estrutura foi resolvida de tal forma que não há pilares nos cantos do edifício, criando balanços surpreendentes e proporcionando uma volumetria bastante expressiva para o conjunto. Junto à Rua Girassol, esses balanços estabelecem um vazio que está desenhado de forma a rememorar o perfil típico da paisagem da Vila. Com um jogo de cheios e vazios, a volumetria do edifício busca estabelecer uma relação entre o novo edifício e as construções tradicionais do bairro: é como se, sob o volume principal do edifício restasse, como um vestígio, o vazio deixado pelas casinhas que um dia existiram ali.

O uso de quebra-sóis laminares, em chapa perfurada, ao redor do volume, cria um envelope protetor que dá unidade e caráter ao edifício. As varandas, com 3 metros de profundidade, estão localizadas na fachada que se abre para o parque, o que permite a criação de espaços de convívio, ou mesmo de trabalho, junto às copas das árvores.