O Edifício Capote 210 está localizado no bairro de Pinheiros, na proximidade do eixo da Av. Rebouças, local privilegiado por uma ampla infraestrutura urbana e proximidade com os principais centros comerciais da cidade de São Paulo.

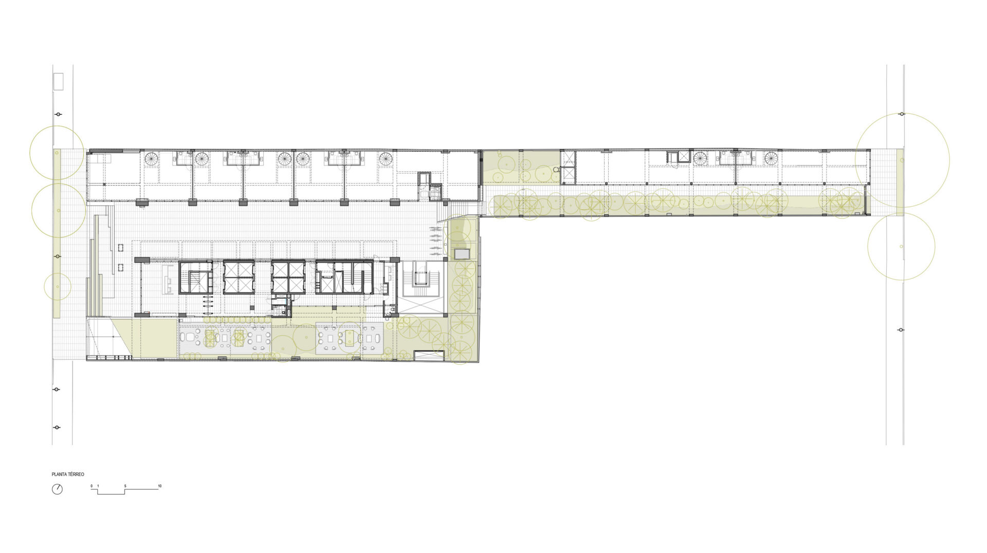
O térreo destaca-se por uma generosa galeria que conecta as ruas Capote Valente e Oscar Freire por meio de uma fruição urbana que abriga restaurantes, lojas e amplos jardins em toda a sua extensão.

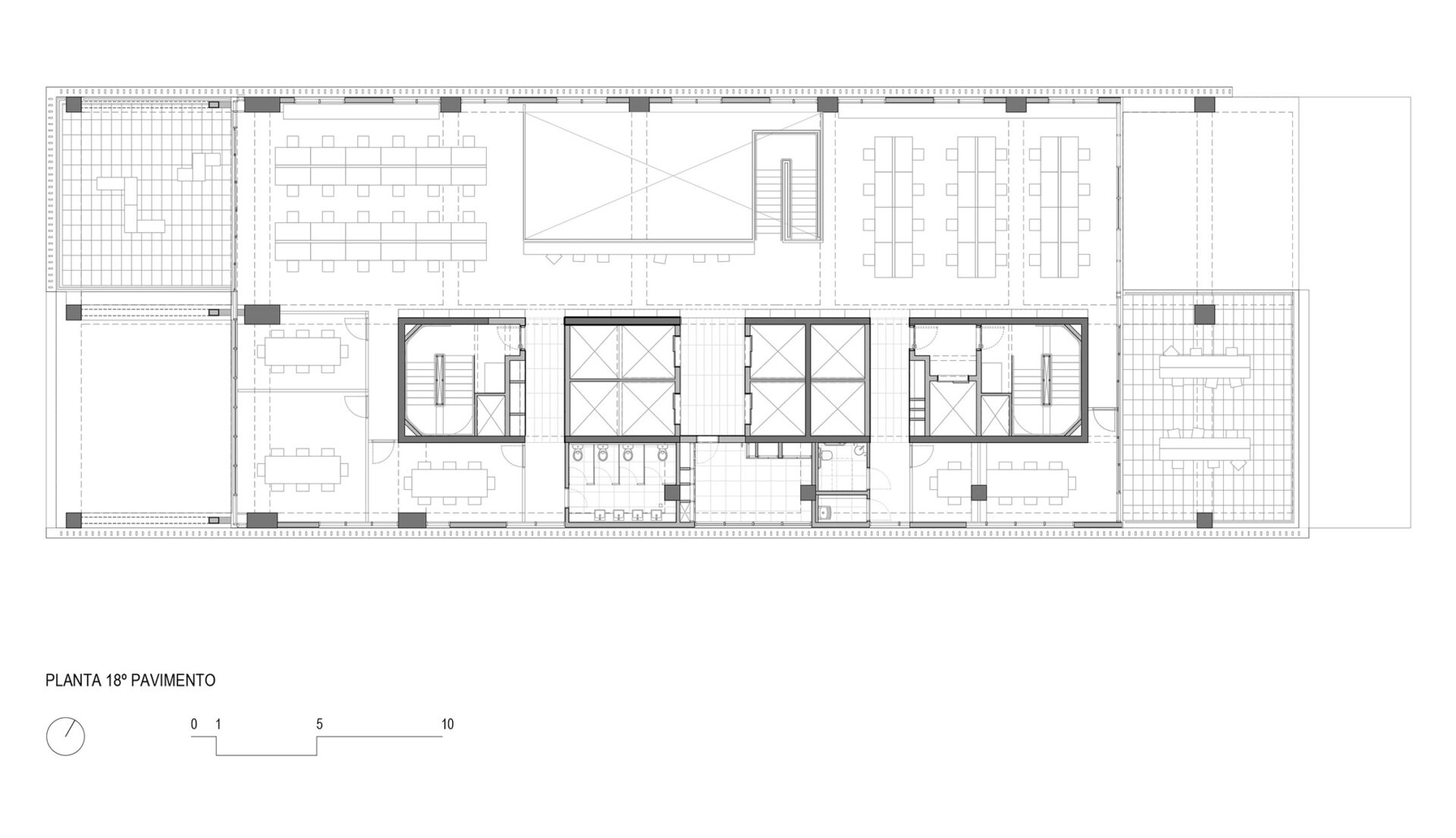
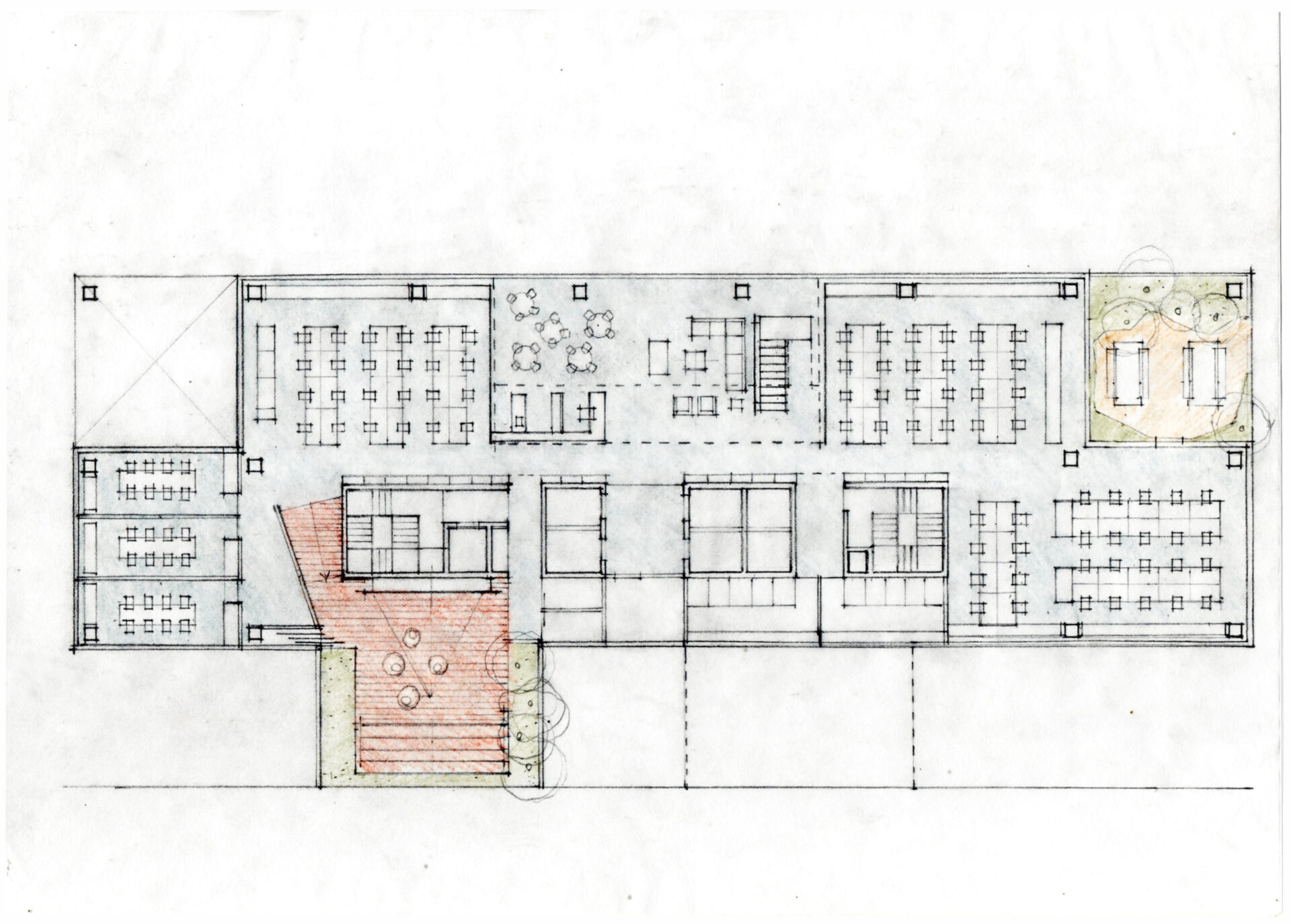
Com um programa multifuncional conformado por unidades residenciais, conjuntos comerciais e áreas comuns distribuídas ao longo de sua torre, o projeto busca uma relação direta com a volumetria do entorno imediato, que através de grandes varandas, possibilita a apropriação das empenas cegas de seus vizinhos.

Na face da rua Capote Valente o corpo da edificação ganha um grande balanço que permite um encontro com a rua em uma escala que valoriza a vida urbana local e permite o acesso franco à rua interna proposta.

O corpo vertical da edificação é composto por conjuntos comerciais que exploram lajes conformadas por vazios e que possibilitam conjuntos de dois a três pavimentos com varandas amplas e de pé direito duplo, envoltos por uma proteção solar composta por brises verticais em concomitância com a possibilidade de ventilação cruzada em todo o projeto.

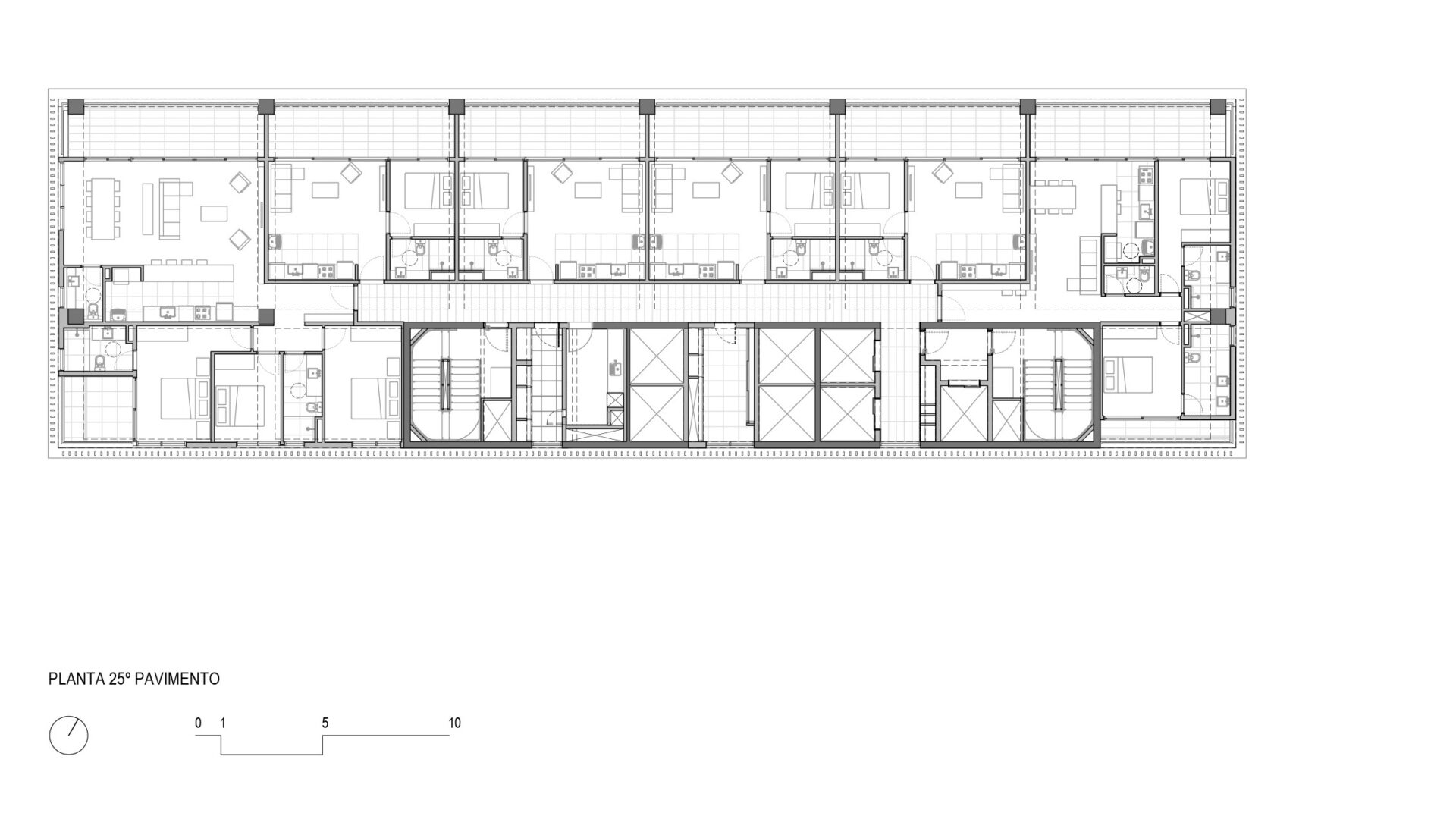
O volume superior é ocupado por conjuntos residências modulares com pé direito generoso e que elevados em relação aos vizinhos, possibilitam uma vista do bairro de Pinheiros e com uma insolação privilegiada durante o ano todo.