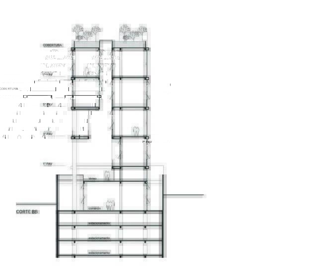
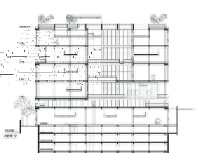
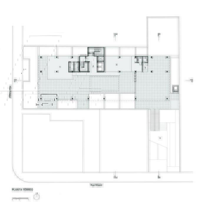
A implantação do edifício no lote explora a possibilidade de conexão entre as ruas Wisard e Fidalga. Esta conexão valoriza a percepção espacial e visual do lugar. Desta forma cria-se um percurso contínuo que se inicia no passeio público e conduz a um generoso hall aberto que conta com pé direito triplo e com as visuais livres. A construção da lamina superior expressa o conceito de um edifício flexível, através da sobreposição de lajes com pé direito duplo e fechamentos leves posicionados demaneira alternada, proporcionando espaços diversificados e também grande liberdade para a ocupação de seus espaços internos.